2011 – 2011
                            
                
Das „Dokumentation- und Ausstellungszentrum zur Geschichte der US-Amerikaner in Rheinland-Pfalz“, kurz „docu center ramstein“ widmet sich der wissenschaftlichen Aufarbeitung und Vermittlung dieser Geschichte.
Der hierfür ausgetragene, nichtoffene Planungswettbewerb fand 2011 nach einer europaweiten Ausschreibung statt. Der Beitrag von ZHN-Architekten erhielt den 1. Preis.
Das Gebäude fügt sich mit seiner Höhe und Straßenbezug in die Umgebung ein. Gleichzeitig wird die besondere Nutzung des Gebäudes durch die Fassade, seine Offenheit und Materialität deutlich sichtbar und seine herausgehobene Bedeutung deutlich. Die Fassadenmaterialien Edelstahl und Glas mit Ihrer industriellen Verarbeitung schaffen einen Bezug zum Thema Flughafen Ramstein Air Base und unterstreichen den überregionalen Charakter des Dokumentationszentrums.
Im Inneren entsteht ein offener, fließender Raumeindruck. Helle klare Materialien, sowie die Grundbeleuchtung mittels integrierter Deckenleuchten schaffen eine einladende Atmosphäre. Die Ausstellungsstücke werden zusätzlich durch variable Spots inszeniert.
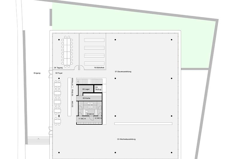
Die Räume des Dokumentationszentrums werden auf 2 Ebenen angeordnet. Die öffentliche, obere Ebene wird von einem straßenbegleitenden Vorplatz erschlossen. Über das Foyer und den Kassenbereich gelangt man direkt in die einzelnen Raumbereiche. Der Serviceblock ist frei in die obere Ebene eingestellt. Die Mitarbeiterräume, sowie Archiv, Depot und Technikräume befinden sich in der unteren Ebenen und werden durch einen separaten Zugang erschlossen.
 
                        